720.000€
Surface
224m2Parcelle
203m2Chambres.
3Salles de bain
4Piscine
Oui3
4
224m2
116m2
203m2
Oui
1700 Mts.
Number of Parking Spaces: 1
Near Schools
Near Commercial Center
Gated
Location: Coastal, Urbanisation
Double Bedrooms: 3
Garden
Private Pool
Near Golf / Golf Resort Property
Beach: 1700 Meters
Under-Build / Basement
Terrace: 110 Msq.
Parking - Space
Useable Build Space: 116 Msq.
Heating: Yes
Storage / Trastero
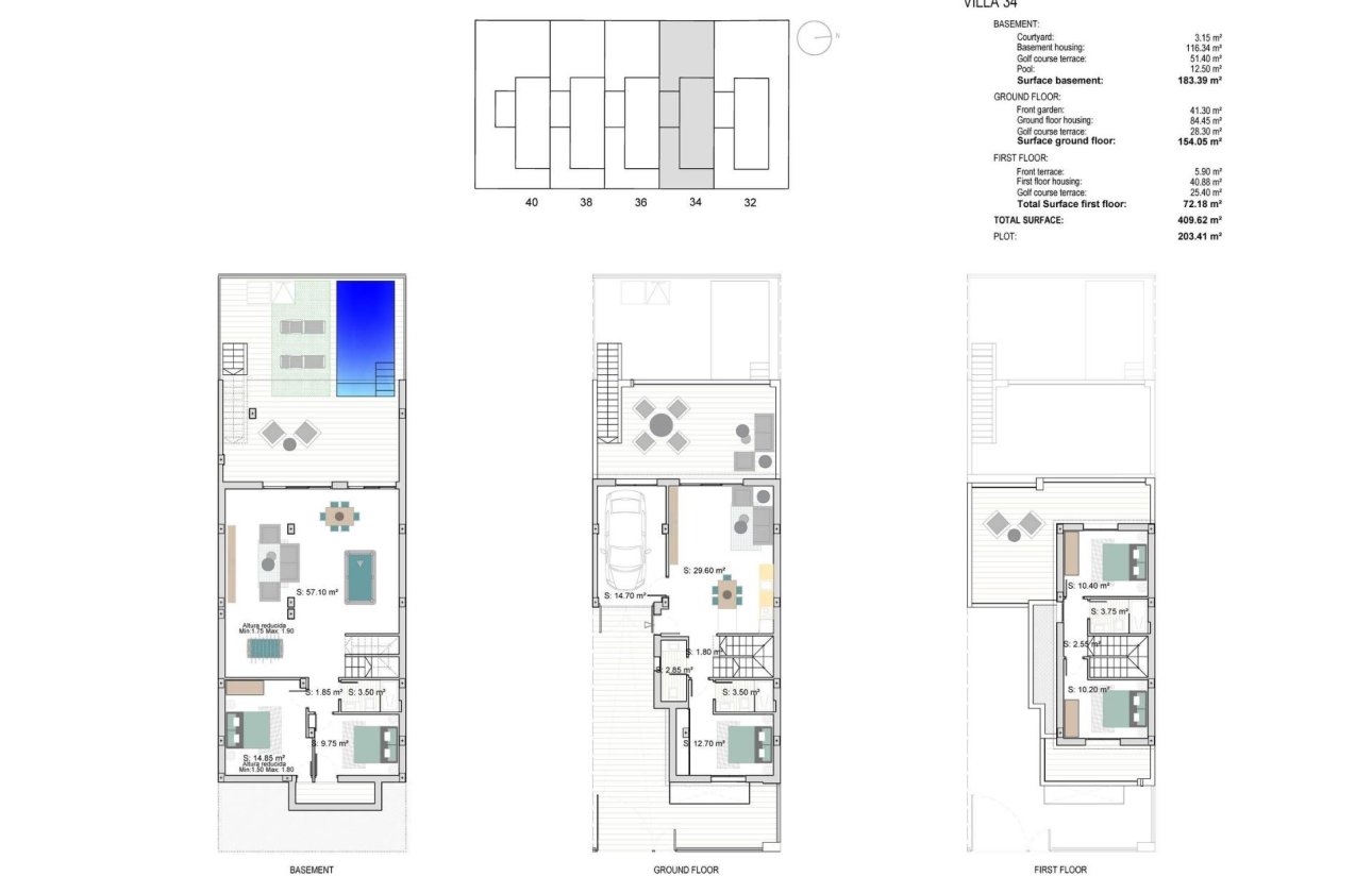
Villas jumelées et indépendantes neuves à La Serena Golf-Los Alcázares Découvrez la maison de vos rêves dans ces superbes villas jumelées et indépendantes situées en première ligne du golf La Serena à Los Alcázares, où la vie moderne côtoie des vues imprenables sur le golf. Ces maisons de 3 chambres et 4 salles de bains, méticuleusement conçues, sont parfaites pour les familles à la recherche de luxe, de confort et d'une touche de charme méditerranéen. Chambres et salles de bains : Trois chambres spacieuses, conçues pour le confort. Chaque chambre dispose de placards intégrés, assurant un rangement spacieux. Quatre salles de bains contemporaines, avec des accessoires et des finitions de haute qualité. Une cuisine ouverte et un salon accueillants, idéaux pour recevoir et se retrouver en famille. Grand salon avec de grandes baies vitrées qui baignent l'espace de lumière naturelle et offrent une vue imprenable sur le terrain de golf. Un sous-sol spacieux pouvant être utilisé comme salle de jeux, salle de sport ou espace de rangement supplémentaire. Place de parking privée pour un stationnement sécurisé et pratique. Piscine privée entourée d'un magnifique jardin, parfaite pour se détendre et profiter du soleil. Grande terrasse pour les repas en plein air et les réceptions, avec vue imprenable sur le terrain de golf. Climatisation et chauffage pour plus de confort tout au long de l'année. Proximité des services locaux, notamment des magasins, des restaurants et, bien sûr, des terrains de golf de classe mondiale. Los Alcázares est connu pour ses belles plages, sa communauté dynamique et ses nombreuses activités de plein air. L'emplacement offre un équilibre parfait entre tranquillité et accessibilité, ce qui en fait un endroit idéal pour les touristes comme pour les résidents à l'année. Cette propriété est un mélange parfait d'architecture moderne, de confort et de loisirs. Ne manquez pas l'occasion de posséder un coin de paradis à Los Alcázares ! 642
Ou contactez-nous par WhatsApp