Alicante · Orihuela Costa Appartement · Nouvelle Construction

Réf.: NB-89986

469.000€

Alicante · Orihuela Costa Appartement · Nouvelle Construction

Caractéristiques

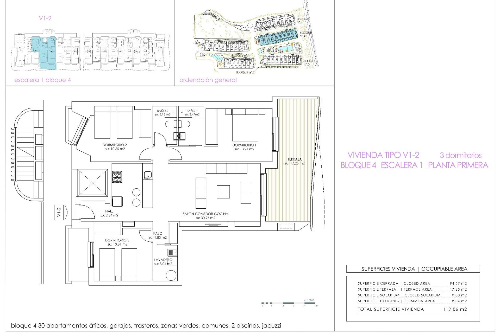
  • Surface

    94m2
  • Chambres.

    3
  • Salles de bain

    2
  • Piscine

    Oui
Chambres Chambres:

3

Salles de bain Salles de bain:

2

Construit Construit:

94m2

Utile Utile:

84m2

Piscine Piscine:

Oui

Distance à la plage Distance à la plage:

500 Mts.

Beach: 500 Meters

Parking - Space

Storage / Trastero

Elevator/Lift

Communal Pool

Number of Parking Spaces: 1

Near Schools

Near Commercial Center

Near Bus Route

Air Conditioning: Pre-Installed

Gated

Near Trees

Location: Coastal, Urbanisation

Double Bedrooms: 3

Useable Build Space: 84 Msq.

Terrace: 17 Msq.

Description

Emplacement

Form

Demande d'information

Responsable del tratamiento: Immo Le Romino SL, Finalidad del tratamiento: Gestión y control de los servicios ofrecidos a través de la página Web de Servicios inmobiliarios, Envío de información a traves de newsletter y otros, Legitimación: Por consentimiento, Destinatarios: No se cederan los datos, salvo para elaborar contabilidad, Derechos de las personas interesadas: Acceder, rectificar y suprimir los datos, solicitar la portabilidad de los mismos, oponerse altratamiento y solicitar la limitación de éste, Procedencia de los datos: El Propio interesado, Información Adicional: Puede consultarse la información adicional y detallada sobre protección de datos Aquí.

Ou contactez-nous par WhatsApp

WhatsApp