372.000€
Surface
95m2Parcelle
202m2Chambres.
3Salles de bain
2Piscine
Oui3
2
95m2
74m2
202m2
Oui
2500 Mts.
Number of Parking Spaces: 1
Near Schools
Near Commercial Center
Air Conditioning: Pre-Installed
Gated
Solarium: Yes
Location: Coastal, Urbanisation
Double Bedrooms: 3
Useable Build Space: 74 Msq.
Garden
Private Pool
Beach: 2500 Meters
Parking - Space
Terrace: 184 Msq.
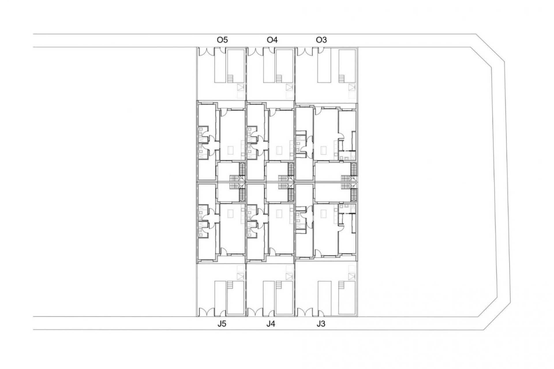
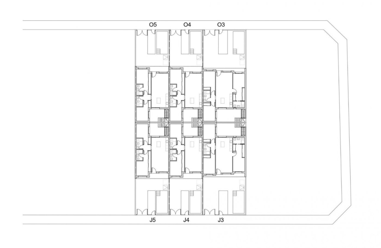
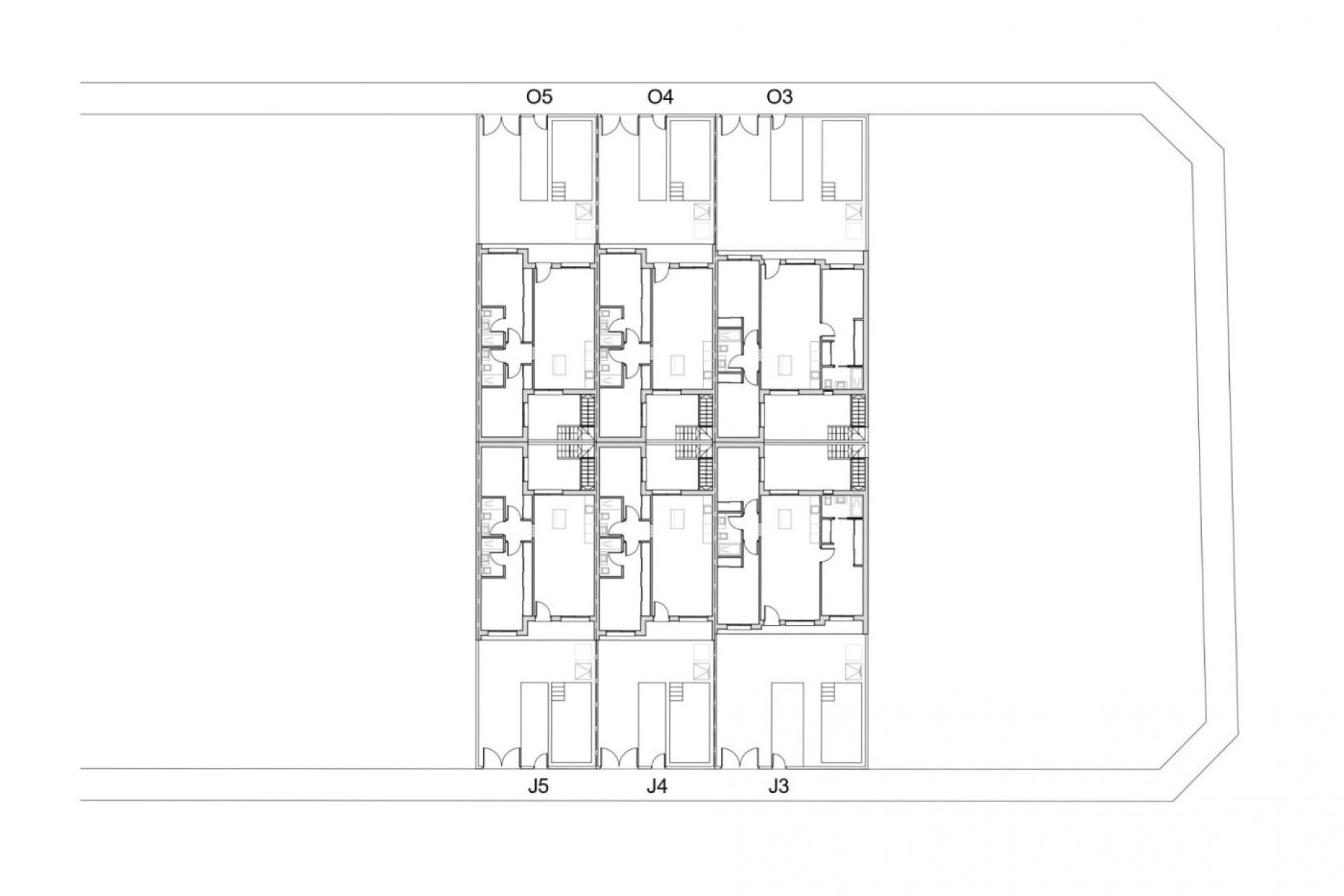
MAISONS DE VILLE NOUVELLEMENT CONSTRUITES À SAN JAVIER Nouveau complexe de luxe de 24 villas de plain-pied ou sur 2 étages avec piscine privée, terrasse et solarium avec cuisine d'été qui vous permet de profiter de toutes les heures de soleil, tous les jours de l'année. Chaque villa dispose de 2 ou 3 chambres et 2 salles de bain équipées sur un niveau ou de 3 chambres et 3 salles de bain équipées sur deux niveaux. Conçue dans un style contemporain et un concept ouvert, elle comprend une cuisine entièrement équipée et un salon-salle à manger. Le projet est situé à San Javier (Murcia), près de la plage, entouré de services, de parcs, d'installations sportives et de plusieurs terrains de golf. La propriété répondra aux normes les plus élevées et sera équipée de : Piscine privée avec douche. Cuisine entièrement meublée et équipée avec four, micro-ondes, réfrigérateur, lave-vaisselle intégré, plaque de cuisson et hotte aspirante. Éclairage : à l'intérieur de la propriété (salle à manger, cuisine, couloirs et salles de bains) ainsi que dans les espaces extérieurs. Armoires doublées avec tiroirs. Salles de bains entièrement équipées avec toilettes, meuble-lavabo, miroir et douche avec panneaux de séparation. Pré-installation de la climatisation par conduits. Solarium avec cuisine d'été. Place de parking sur le terrain. San Javier est proche de toutes les commodités avec un accès facile à la plage, aux sports nautiques, aux magasins et au réseau de transport. Ici, vous pouvez profiter de toutes les installations que San Javier a à offrir, comme les magasins locaux, les bars et les restaurants, tout en étant proche des centres commerciaux, de l'aéroport de Murcia et de tous les beaux endroits à trouver le long de la Mar Menor. L'aéroport de Corvera/Murcia est à 30 minutes et celui d'Alicante à 45 minutes. 642
Ou contactez-nous par WhatsApp