291.500€
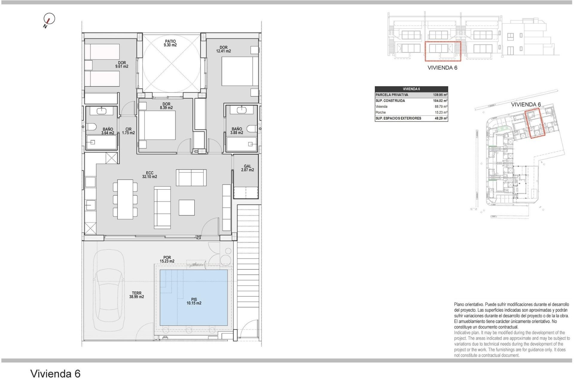
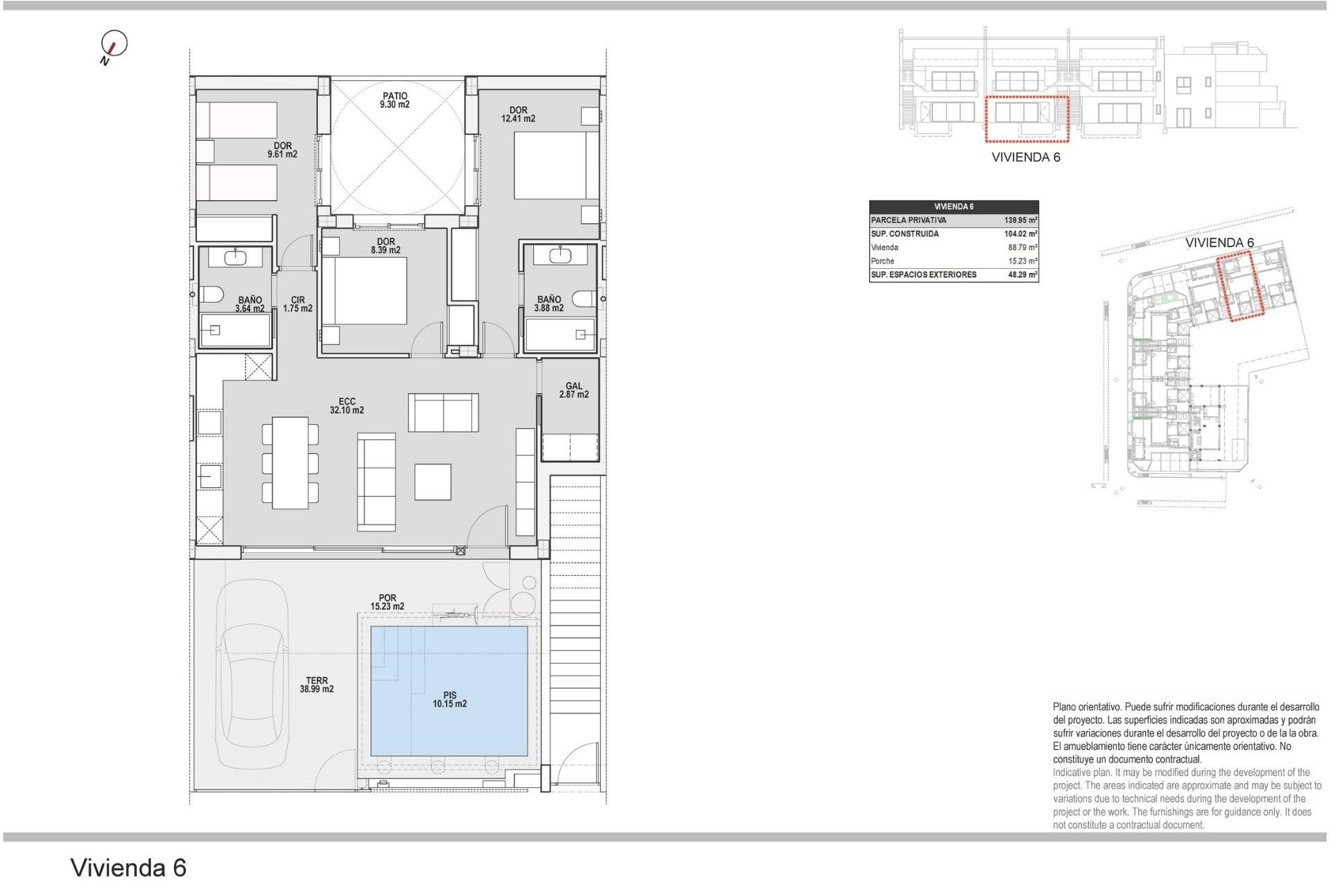
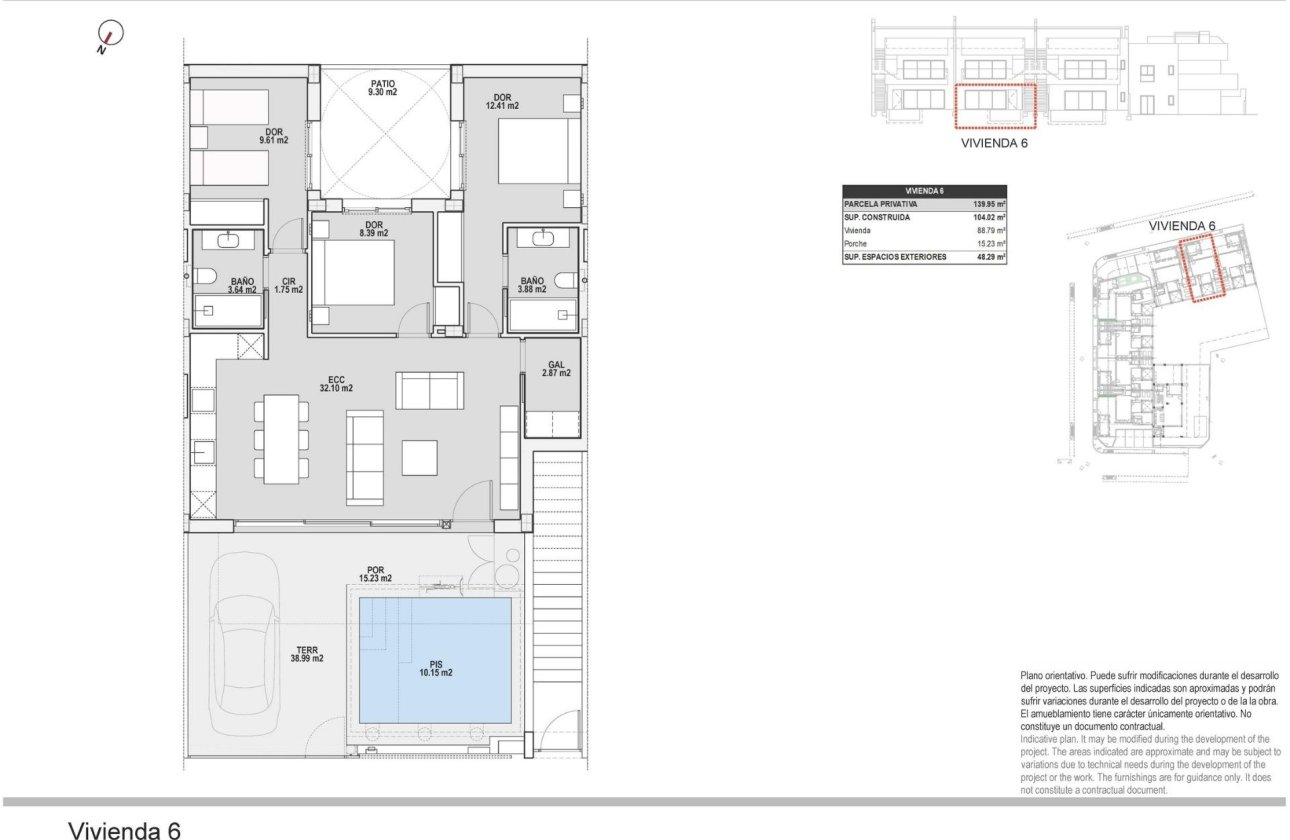
Surface
104m2Parcelle
48m2Chambres.
3Salles de bain
2Piscine
Oui3
2
104m2
95m2
48m2
Oui
3000 Mts.
Number of Parking Spaces: 1
Near Schools
Near Commercial Center
Near Bus Route
Air Conditioning: Pre-Installed
Gated
Location: Coastal, Urbanisation
Double Bedrooms: 3
Garden
Private Pool
Useable Build Space: 95 Msq.
Terrace: 15 Msq.
Beach: 3000 Meters
Parking - Space
Laundry Room
Bungalows neufs à vendre à Pilar de la Horadada, à 3 km de la plage Complexe résidentiel boutique à Pilar de la Horadada Découvrez ce complexe résidentiel exclusif de bungalows modernes situés à Pilar de la Horadada, la ville la plus au sud de la Costa Blanca. Ce projet boutique se compose de seulement 14 maisons soigneusement conçues, avec 2 ou 3 chambres et 2 salles de bains, offrant une combinaison idéale de confort, de style et de mode de vie méditerranéen. Le complexe est situé dans un quartier résidentiel calme, à quelques pas du centre-ville, ce qui permet aux résidents de profiter d'un accès facile aux commerces, restaurants, supermarchés et services essentiels. Pilar de la Horadada est connue pour son atmosphère accueillante, son charme espagnol traditionnel et sa rue principale animée, regorgeant de cafés, de boutiques et de charmantes places. Bungalows modernes avec espaces extérieurs privés Les maisons ont été conçues pour offrir des intérieurs lumineux et des agencements fonctionnels, parfaits pour une utilisation permanente ou comme résidence secondaire. Les bungalows du rez-de-chaussée disposent d'un jardin privé et d'une piscine privée, créant ainsi le cadre idéal pour profiter de la vie en plein air, prendre des bains de soleil ou recevoir famille et amis. Les bungalows du dernier étage comprennent une terrasse spacieuse et un solarium privé sur le toit. Le solarium est équipé d'une cuisine d'été et offre la possibilité d'ajouter une piscine privée ou un jacuzzi moyennant un supplément, ce qui en fait un espace idéal pour se détendre tout en profitant du climat méditerranéen chaud et d'une vue dégagée. Chaque propriété comprend une place de parking privée au sein du complexe résidentiel pour plus de commodité. Construction de qualité et équipements modernes Ces maisons neuves sont construites avec des matériaux de qualité et des installations modernes conçues pour garantir confort et efficacité énergétique tout au long de l'année. Menuiserie extérieure en aluminium avec rupture thermique Cuisines entièrement équipées avec appareils électroménagers inclus Salles de bains équipées de miroirs et de parois de douche Éclairage LED intérieur et extérieur Système d'eau chaude avec technologie aérothermique à haut rendement énergétique Pré-installation pour la climatisation canalisée La combinaison d'un design moderne et d'équipements pratiques fait de ces maisons une excellente option pour les acheteurs à la recherche d'une propriété contemporaine sur la Costa Blanca. Excellent emplacement à proximité des plages et des terrains de golf Pilar de la Horadada bénéficie d'un emplacement stratégique à proximité de certaines des meilleures plages et terrains de golf de la région. Plage de Torre de la Horadada 3 km Plage de Mil Palmeras 3 km Lo Romero Golf 6 km Aéroport international de la région de Murcie 45 km Aéroport d'Alicante Elche 75 km La région offre également d'excellentes liaisons routières vers les villes côtières, les marinas et les installations de loisirs voisines, ce qui en fait un point de départ idéal pour explorer la Costa Blanca et la Costa Calida. Trouvez votre nouvelle maison sur la Costa Blanca Si vous recherchez un bungalow moderne de construction récente près de la plage, doté d'excellentes commodités et bénéficiant d'un emplacement fantastique, ce complexe résidentiel à Pilar de la Horadada est une opportunité exceptionnelle. Contactez-nous dès aujourd'hui pour obtenir plus d'informations ou pour organiser une visite. 642
Ou contactez-nous par WhatsApp