280.000€
Surface
55m2Chambres.
2Salles de bain
1Piscine
Oui2
1
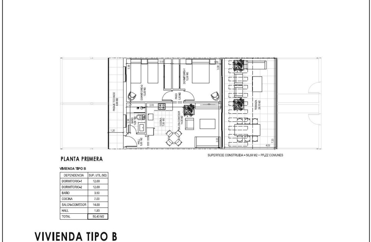
55m2
50m2
Oui
20 Mts.
Elevator/Lift
Communal Pool
Number of Parking Spaces: 1
Views: Sea
Near Schools
Near Commercial Center
Near Bus Route
Air Conditioning: Pre-Installed
Gym
Gated
Near Childrens Parks
Location: Coastal, Urbanisation
Double Bedrooms: 2
Terrace: 29 Msq.
Beach: 20 Meters
First Line to the Sea
Games Room
Under-Build / Basement
Useable Build Space: 50 Msq.
Parking - Space
Licensed Tourist Property
Appartements et villas de luxe avec plage privée en première ligne de mer à Vera Playa-Almería Complexe méditerranéen exclusif à Vera Playa Découvrez un complexe résidentiel haut de gamme unique à Vera Playa, l'une des zones côtières les plus attrayantes d'Almería. Ce projet immobilier exceptionnel établit une nouvelle référence en matière de luxe méditerranéen, alliant architecture contemporaine, lumière naturelle et proximité immédiate de la mer. Conçu pour offrir intimité, confort et raffinement, le complexe propose un style de vie inégalé dans un emplacement privilégié en bord de mer. Vera Playa est réputée pour ses vastes plages de sable, son atmosphère détendue et son excellent climat, ce qui en fait une destination idéale tant pour l'investissement que pour les vacances. Appartements élégants et villas privées en bord de mer Le projet se compose de 156 appartements touristiques et de 44 villas jumelées et individuelles, judicieusement répartis dans un cadre paysager. Les appartements sont situés dans des immeubles modernes de faible hauteur et proposent des agencements de 1 ou 2 chambres. Les logements du rez-de-chaussée disposent de terrasses spacieuses, avec la possibilité d'un jacuzzi privé dans certains d'entre eux ; les appartements des étages intermédiaires comprennent de généreux espaces extérieurs avec vue sur la mer, et les penthouses bénéficient de terrasses et de solariums privés offrant une vue imprenable sur la mer. Les villas représentent le summum de l'exclusivité au sein du complexe. Situées dans la zone la plus privilégiée en première ligne de mer, ces résidences offrent 2 chambres, 1 salle de bains, des piscines privées et des espaces barbecue, permettant aux résidents de profiter d'une indépendance et d'un confort à quelques pas de la plage. Plage privée et équipements haut de gamme du complexe L'une des caractéristiques les plus remarquables de ce projet est sa plage de sable privée au sein du complexe, offrant un environnement sécurisé avec un accès direct à Vera Playa. Les résidents peuvent également profiter d'une large gamme d'équipements de type resort, notamment deux piscines communes, dont une chauffée, un club de plage proposant une cuisine internationale, et un club social avec salle de sport, sauna, centre d'affaires, club pour enfants et espace de jeux. Chaque propriété dispose d’une place de parking extérieure, et l’ensemble du complexe a été conçu pour répondre aux normes d’accessibilité, avec notamment des logements adaptés aux personnes à mobilité réduite. Emplacement de choix avec une excellente connectivité Centre-ville de Vera à 6 km Accès direct à la plage de Vera Playa Port de plaisance de Garrucha à 5 km Mojácar à 10 km Golf Desert Springs à 8 km Golf Valle del Este à 6 km Aéroport d’Almería à 85 km Future gare du train à grande vitesse AVE à proximité La région offre un accès facile via les autoroutes AP 7 et A 7, garantissant des déplacements pratiques le long de la côte et vers les grandes villes. Opportunité d'investissement à haut rendement Il s'agit de propriétés touristiques entièrement agréées, gérées par un opérateur hôtelier professionnel, permettant aux propriétaires de profiter d'un usage personnel tout en générant des revenus locatifs lorsqu'elles ne sont pas utilisées. De plus, la TVA est déductible, ce qui offre des économies significatives à l'achat et renforce le potentiel d'investissement. Assurez-vous une propriété de luxe à Vera Playa Que vous recherchiez une résidence secondaire haut de gamme ou un investissement à haut rendement sur la côte méditerranéenne, ce complexe exclusif offre une opportunité rare. Contactez-nous dès aujourd'hui pour plus d'informations ou pour organiser une visite et réserver votre place dans ce programme immobilier exceptionnel. 642
Ou contactez-nous par WhatsApp