Alicante · Polop Villa · Nieuwbouw Woningen

Ref.: NB-29758

470.000€

Alicante · Polop Villa · Nieuwbouw Woningen

Kenmerken

  • Meters

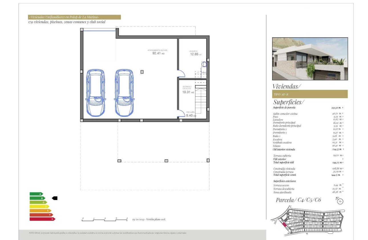
    200m2
  • Perceel

    241m2
  • Slaapkamers.

    3
  • Badkamers

    2
  • Zwembad

    Ja
Slaapkamers Slaapkamers:

3

Badkamers Badkamers:

2

Oppervlakte Oppervlakte:

200m2

Nuttig Nuttig:

108m2

Perceel Perceel:

241m2

Zwembad Zwembad:

Ja

Afstand van het strand Afstand van het strand:

8500 Mts.

Key Ready

Communal Pool

Number of Parking Spaces: 1

Views: Sea

Near Schools

Near Commercial Center

Air Conditioning: Pre-Installed

Gated

Solarium: Yes

Near Trees

Double Bedrooms: 3

Garden

Private Pool

Under-Build / Basement

Useable Build Space: 108 Msq.

Parking - Space

Terrace: 113 Msq.

Location: Rural, Mountain, Urbanisation

Beach: 8500 Meters

Omschrijving

Locatie

Form

Informatie aanvragen

Responsable del tratamiento: Immo Le Romino SL, Finalidad del tratamiento: Gestión y control de los servicios ofrecidos a través de la página Web de Servicios inmobiliarios, Envío de información a traves de newsletter y otros, Legitimación: Por consentimiento, Destinatarios: No se cederan los datos, salvo para elaborar contabilidad, Derechos de las personas interesadas: Acceder, rectificar y suprimir los datos, solicitar la portabilidad de los mismos, oponerse altratamiento y solicitar la limitación de éste, Procedencia de los datos: El Propio interesado, Información Adicional: Puede consultarse la información adicional y detallada sobre protección de datos Aquí.

Contact via WhatsApp

WhatsApp