1.700.000€
Meters
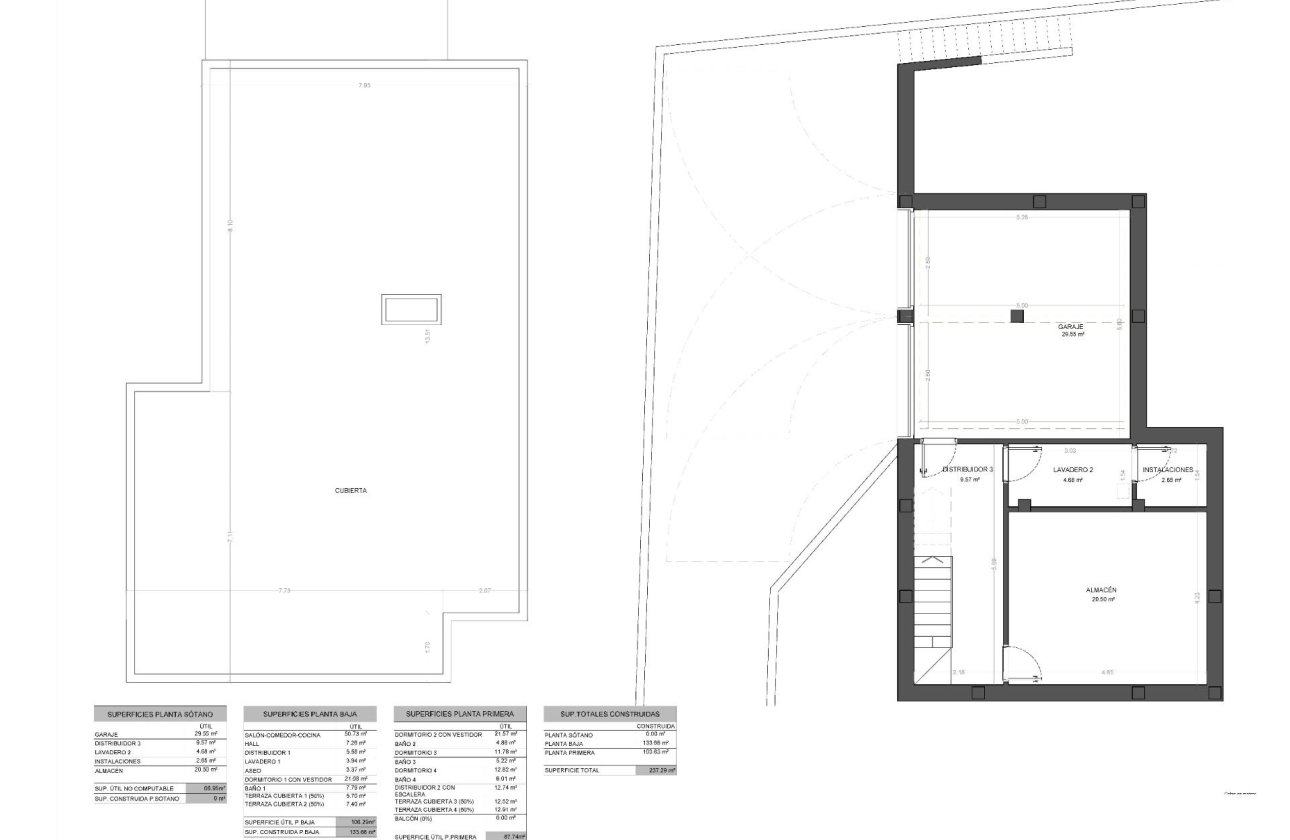
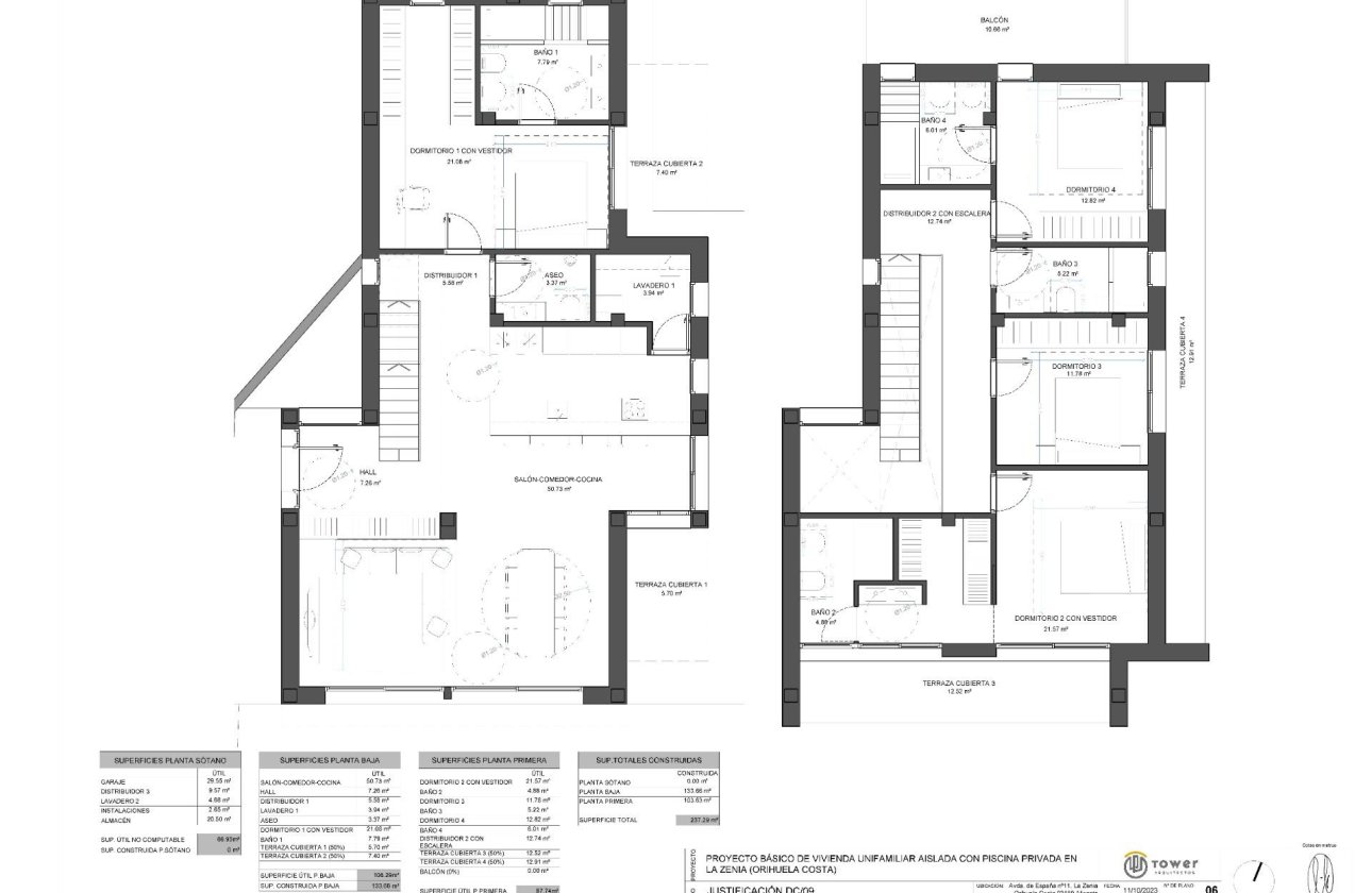
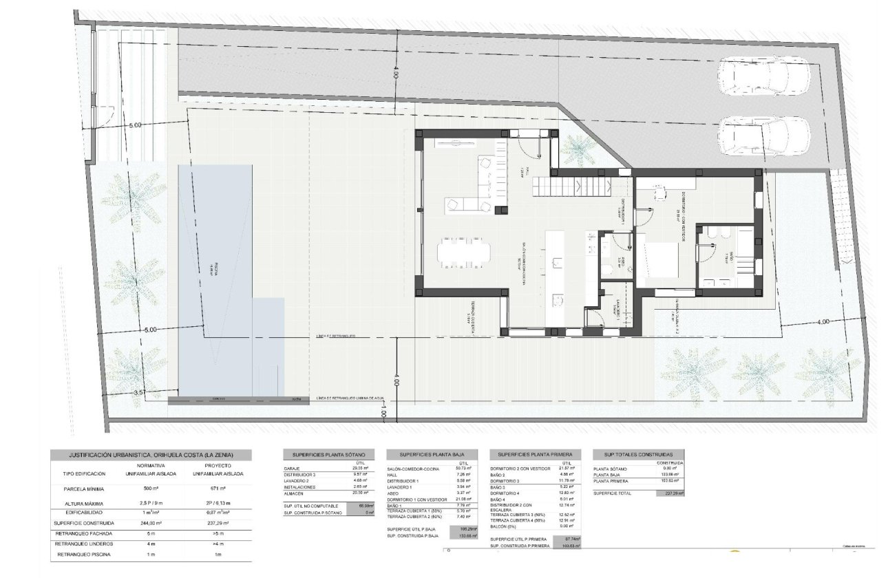
237m2Perceel
671m2Slaapkamers.
4Badkamers
4Zwembad
Ja4
4
237m2
193m2
671m2
Ja
600 Mts.
Garden
Private Pool
Under-Build / Basement
Beach: 600 Meters
Terrace: 75 Msq.
Parking - Space - Garage - Double Garage
Useable Build Space: 193 Msq.
Storage / Trastero
Toilet: 1
Near Schools
Near Commercial Center
Near Bus Route
Air Conditioning: Pre-Installed
Double Bedrooms: 4
Gated
Near Trees
Location: Coastal, Urbanisation
Number of Parking Spaces: 2
Nieuwbouw luxe villa te koop in La Zenia, Orihuela Costa Exclusief wonen vlakbij het strand aan de Costa Blanca Deze indrukwekkende luxe villa in Orihuela Costa ligt op slechts 600 m van de zandstranden van La Zenia en biedt de perfecte balans tussen comfort, design en een mediterrane levensstijl. Met 4 ruime slaapkamers, elk met een eigen badkamer, plus een gastentoilet, is dit huis ideaal voor gezinnen of voor diegenen die op zoek zijn naar een ruim vakantieverblijf dicht bij de zee. Premium ontwerp en buitenkenmerken Gelegen op een royaal privéterrein van 670 m2, is de villa ontworpen met hoogwaardige afwerkingen en oog voor detail. Het beschikt over: Zuid-zuidoost oriëntatie voor optimaal daglicht Groot privézwembad Privé ondergrondse garage met ruimte voor 2 auto's en parkeerplaats op het terrein voor meerdere extra auto's. Prachtige aangelegde tuin, ideaal voor het buitenleven Deze woning laat u het hele jaar door genieten van het zonnige klimaat van de Costa Blanca. Beproevde locatie in La Zenia La Zenia is een zeer gewilde woonwijk in Orihuela Costa, bekend om zijn levendige gemeenschap, het hele jaar door beschikbare voorzieningen en de nabijheid van het strand. Bewoners hebben toegang tot: Winkelcentrum La Zenia Boulevard: 2,5 km Golfbaan Villamartín: 4,5 km Centrum van Torrevieja: 9 km Luchthaven Alicante: 40 km Luchthaven Murcia-Corvera: 60 km Omgeven door restaurants, bars, internationale scholen en supermarkten is La Zenia een van de meest dynamische gebieden van de zuidelijke Costa Blanca. Verzeker uzelf van uw droomvilla in La Zenia Of u nu op zoek bent naar een luxe gezinswoning of een eersteklas investering aan de Middellandse Zeekust, deze villa is een uitzonderlijke kans. Neem vandaag nog contact met ons op voor meer informatie, maak een afspraak voor een bezichtiging en maak uw droomhuis werkelijkheid voordat het te laat is. 642
Contact via WhatsApp