840.000€
Meters
248m2Perceel
570m2Slaapkamers.
4Badkamers
3Zwembad
Ja4
3
248m2
190m2
570m2
Ja
2500 Mts.
Near Schools
Near Commercial Center
Double Bedrooms: 4
Gated
Location: Coastal, Urbanisation
Number of Parking Spaces: 2
Garden
Private Pool
Near Golf / Golf Resort Property
Beach: 2500 Meters
Air Conditioning: Yes, Pre-Installed
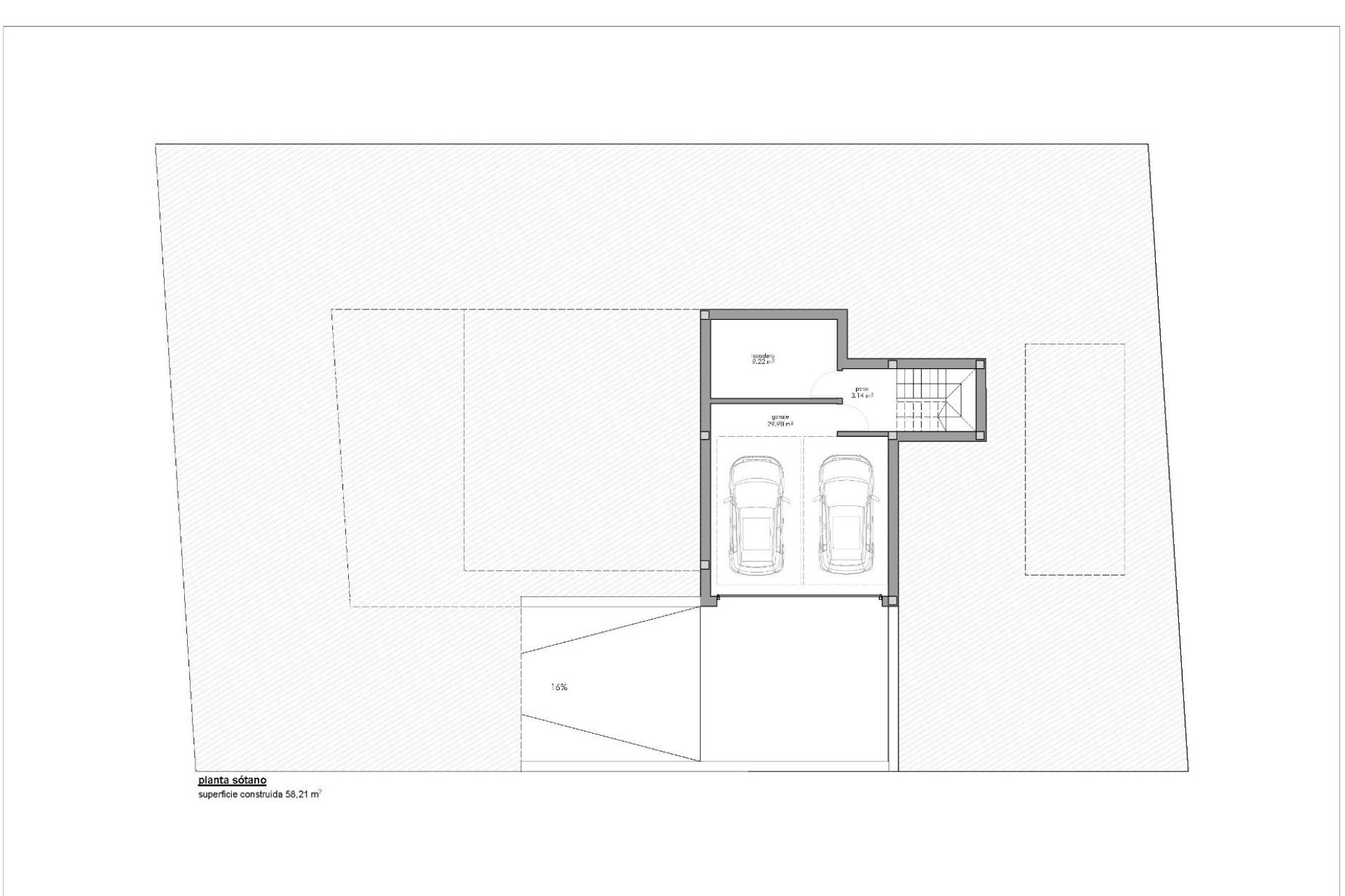
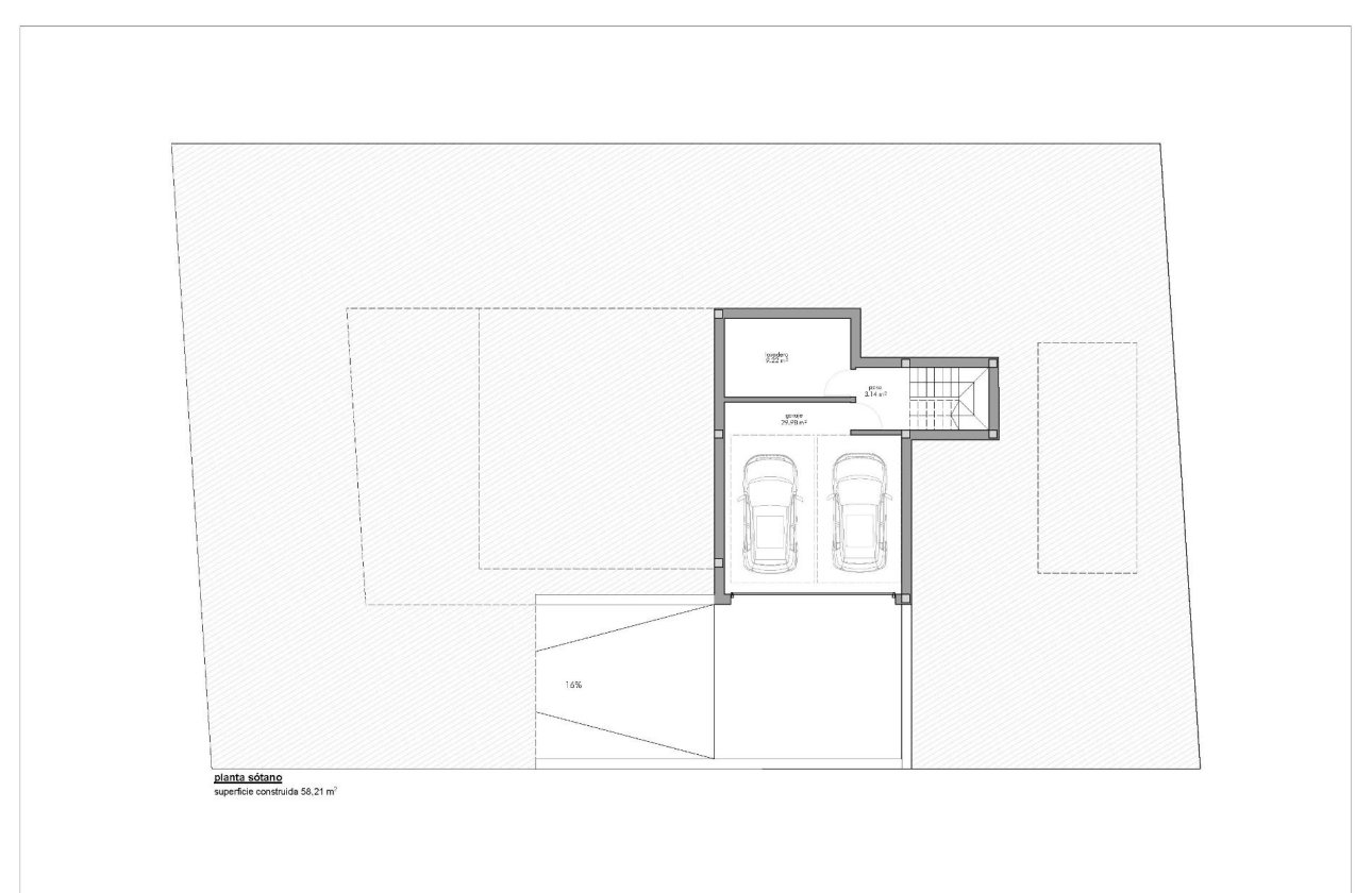
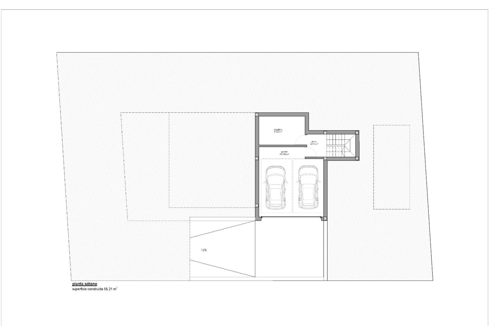
Under-Build / Basement
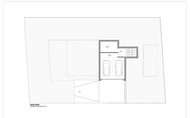
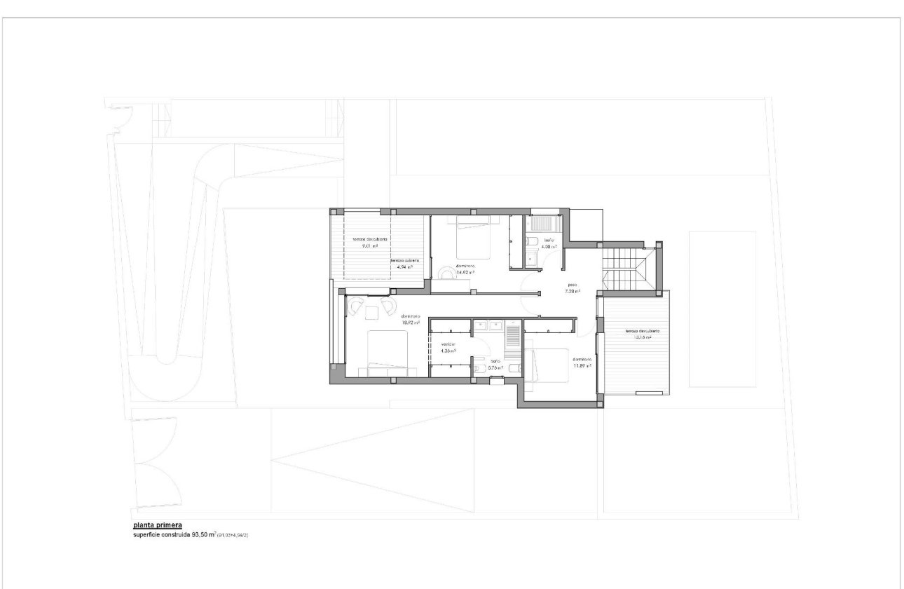
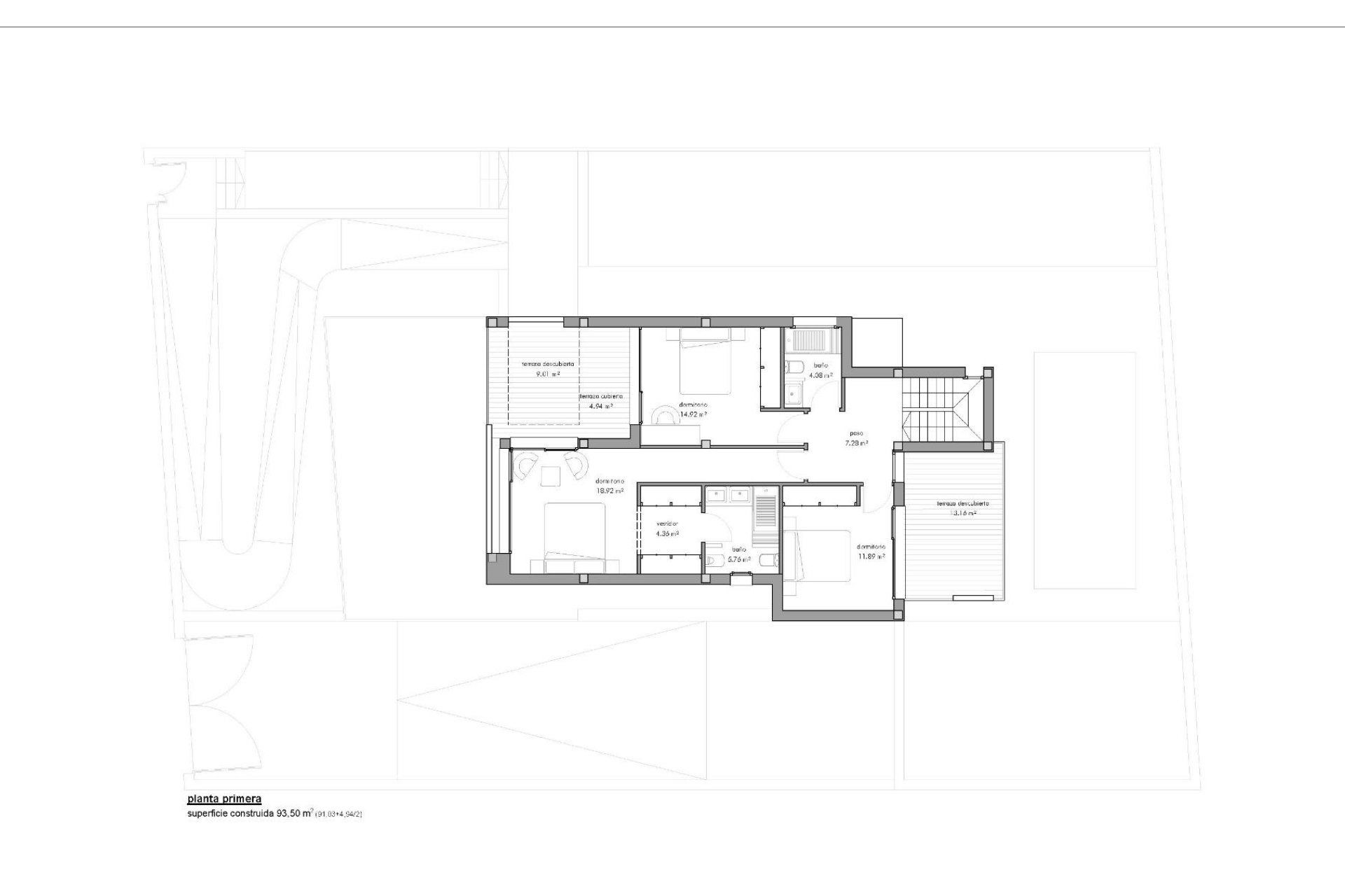
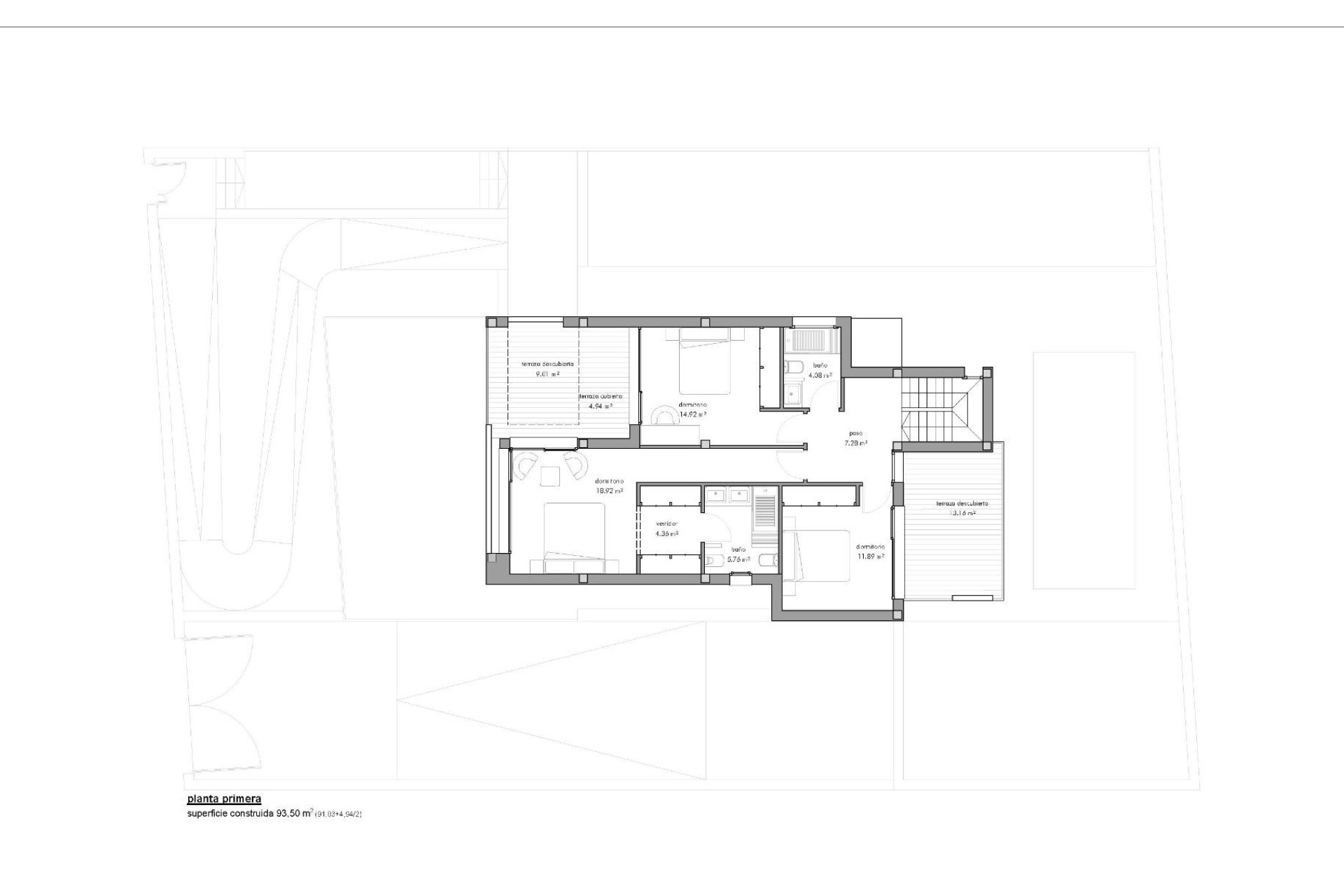
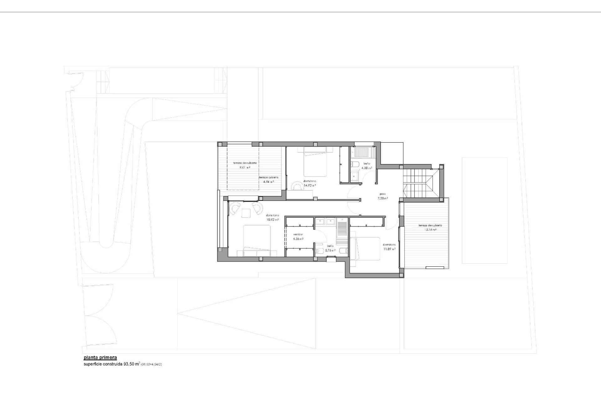
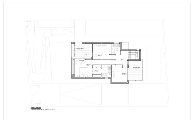
Useable Build Space: 190 Msq.
Parking - Space
Terrace: 108 Msq.
Storage / Trastero
Nieuwbouw Villa's te koop in La Manga Club - Luxe wonen in een prestigieus resort Moderne, ruime villa's op een centrale locatie Ontdek de prachtige nieuwbouwvilla's die te koop staan in La Manga Club, zorgvuldig ontworpen om te voldoen aan de behoeften van het moderne leven. Deze luxe woningen bieden praktische indelingen, hoogwaardige afwerking en toegang tot alle voorzieningen van dit wereldberoemde resort. Dit exclusieve project ligt in het hart van La Manga Club en beschikt over 29 ruime kavels van 500 m² tot 746 m². Kopers kunnen kiezen uit villa's met 2, 3 of 4 slaapkamers, compleet met privézwembaden, aangelegde tuinen en beveiligde parkeergelegenheid. Of je nu op zoek bent naar een vakantiehuis of een permanente verblijfplaats, deze villa's bieden een perfecte mix van comfort, stijl en gemak. Eersteklas voorzieningen en hoogwaardige afwerking Elke villa is gebouwd volgens de hoogste normen, met moderne designelementen en geavanceerde technologie voor maximaal comfort. De belangrijkste kenmerken zijn: Hoogwaardig aluminium timmerwerk met koudebrugonderbrekingen (CORTIZO of gelijkwaardig). Isolerende dubbele beglazing voor energie-efficiëntie en comfort. Domoticasystemen om verlichting, elektriciteit en elektronica te regelen. Aerothermische systemen voor verwarming, koeling en sanitair warm water. Zeer efficiënte ventilatie met gecontroleerde mechanische systemen. Beveiligingsvoorzieningen, inclusief alarmsystemen en vooraf geïnstalleerde videobewaking. Exclusieve locatie - La Manga Club Resort La Manga Club is een van Europa's toonaangevende sport- en vrijetijdsresorts en biedt een ongeëvenaarde levensstijl in een prachtige mediterrane omgeving. Met een oppervlakte van 560 hectare wordt het resort begrensd door natuurparken en ongerepte stranden, wat zorgt voor een adembenemende omgeving en het hele jaar door zon. Bewoners hebben toegang tot voorzieningen van wereldklasse, waaronder: Drie 18-holes golfbanen De Racquets Club met 28 tennis- en padelbanen Fitness- en spafaciliteiten in het Grand Hyatt La Manga Club Golf & Spa Privé toegang tot het strand en uitstekende eetgelegenheden FIFA-voetbalvelden voor sportliefhebbers Uitstekende verbindingen en nabijgelegen attracties La Manga Club is perfect gelegen met uitstekende vervoersverbindingen naar grote Europese steden: Luchthaven Corvera - 50 km (ongeveer 35 minuten met de auto) Vliegveld Alicante - 100 km (ongeveer 1 uur met de auto) Andere bezienswaardigheden in de buurt zijn: Stranden - Op minder dan 3 km van de ongerepte Middellandse Zeekust. Golfbanen - Ter plaatse met drie kampioenschapsbanen Winkelcentra - Op 10-15 km afstand voor al uw winkelbehoeften Jachthavens en havens - Toegankelijk binnen 20 km voor zeil- en watersportliefhebbers De ideale plek voor luxe leven La Manga Club biedt een levendige en veilige gemeenschap, ideaal voor gezinnen, gepensioneerden en golfliefhebbers. Geniet van een rustige en privé levensstijl met toegang tot eersteklas faciliteiten, terwijl je omringd bent door natuurlijke schoonheid en moderne gemakken. Ervaar het luxe leven op zijn best met deze nieuwbouwvilla's in La Manga Club. Mis deze kans niet om een huis te bezitten in een van de meest prestigieuze resorts van Europa. Neem nu contact met ons op voor meer informatie of om een bezichtiging te plannen. 642
Contact via WhatsApp