526.100€
Meters
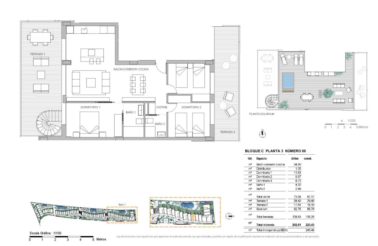
87m2Slaapkamers.
3Badkamers
2Zwembad
Ja3
2
87m2
73m2
Ja
7000 Mts.
Near Bus Route
Gym
Gated
Solarium: Yes
Near Childrens Parks
Terrace: 127 Msq.
Double Bedrooms: 3
Useable Build Space: 73 Msq.
Location: Rural, Urbanisation
Beach: 7000 Meters
Space
Under-Build / Basement
Storage / Trastero
Elevator/Lift
Communal Pool
Number of Parking Spaces: 1
Near Schools
Near Commercial Center
Nieuwbouwwoningen in La Nucía – Modern wonen in Ciudad del Deporte, vlakbij Benidorm Toplocatie in La Nucía aan de Costa Blanca Ontdek dit uitzonderlijke nieuwe woonproject in La Nucía, een van de meest gewilde gebieden aan de Costa Blanca. Gelegen in de innovatieve wijk Ciudad del Deporte biedt deze locatie een unieke combinatie van moderne infrastructuur, een natuurlijke omgeving en dagelijks comfort. La Nucía ligt op slechts 7 km van de stranden van Benidorm en Altea en staat bekend om zijn rustige omgeving, uitstekende sportfaciliteiten en hoge levenskwaliteit. De omgeving biedt ook internationale scholen, winkelgebieden en alle essentiële voorzieningen binnen handbereik, waardoor het ideaal is voor zowel permanent wonen als vakantieverblijven. Moderne appartementen ontworpen voor mediterraan wonen Deze eerste fase omvat 64 stijlvolle appartementen met indelingen van 2 en 3 slaapkamers. Kopers kunnen kiezen tussen woningen op de begane grond met privétuinen, appartementen op de tussenverdiepingen met ruime terrassen of penthouses met privé-zonneterrassen. De meeste woningen beschikken over twee grote terrassen op het oosten en zuidwesten, waardoor u de hele dag van zonlicht kunt genieten en optimaal kunt profiteren van het mediterrane klimaat. De interieurs zijn ontworpen met open indelingen, waardoor het natuurlijke licht optimaal wordt benut en een naadloze verbinding tussen binnen- en buitenruimtes ontstaat. Volledig uitgeruste keukens met Bosch-apparatuur sluiten perfect aan op de woonkamer, terwijl de badkamers zijn voorzien van vloerverwarming, modern meubilair, spiegels en doucheschermen. Hoogwaardige afwerking en energie-efficiëntie Elke woning is gebouwd met hoogwaardige materialen en moderne technologie om comfort en duurzaamheid te garanderen. Tot de voorzieningen behoren dubbele beglazing met thermische isolatie, gemotoriseerde rolluiken, versterkte veiligheidsdeuren en een aerothermisch systeem voor warm water en klimaatbeheersing. Elk appartement beschikt ook over een eigen parkeerplaats en een berging in de ondergrondse garage. Exclusieve gemeenschappelijke ruimtes voor lifestyle en welzijn Het project biedt uitstekende gemeenschappelijke voorzieningen die zijn ontworpen voor ontspanning, vrije tijd en productiviteit. Bewoners kunnen genieten van een groot zwembad omgeven door aangelegde tuinen, een volledig uitgeruste fitnessruimte en een wellness-spa van meer dan 200 m² met jacuzzi, sauna en Turks bad. Tot de extra voorzieningen behoren een sociale club met co-workingruimtes en een kinderspeelplaats, wat zorgt voor een levendige en comfortabele gemeenschapsomgeving. Uitstekende bereikbaarheid en bezienswaardigheden in de buurt Stranden van Benidorm 7 km Altea 8 km Stadscentrum van La Nucía 3 km Luchthaven Alicante 60 km Villaitana Golf 6 km Haven van Altea 10 km Investeringsmogelijkheid en mediterrane levensstijl Dit project biedt niet alleen een moderne woning, maar ook een uitstekende investeringsmogelijkheid, met optionele verhuurbeheerdiensten die zijn ontworpen om het rendement te maximaliseren wanneer de woning niet in gebruik is. Neem vandaag nog contact met ons op voor meer informatie of om een bezichtiging te regelen en uw nieuwe woning in La Nucía te bemachtigen. 642
Contact via WhatsApp