388.000€
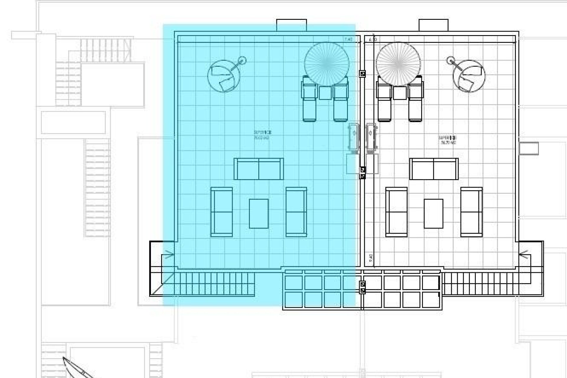
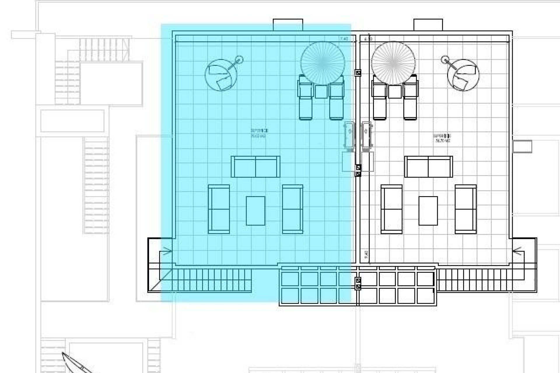
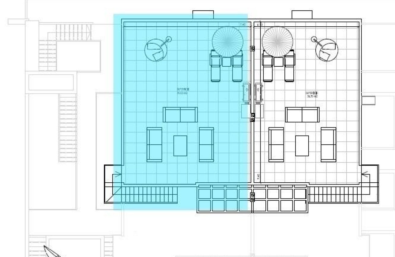
Surface
78m2Beds.
3Baths
2Pool
Yes3
2
78m2
70m2
Yes
700 Mts.
Elevator/Lift
Communal Pool
Number of Parking Spaces: 1
Beach: 700 Meters
Views: Sea
Near Schools
Near Commercial Center
Gated
Solarium: Yes
Location: Coastal, Urbanisation
Double Bedrooms: 3
Useable Build Space: 70 Msq.
Furnished
Parking - Space
Terrace: 104 Msq.
Storage / Trastero
New Build Apartments with Sea Views in Vera Playa, Almería Discover this exceptional new residential development in Vera Playa, offering 27 modern apartments in its first phase. Designed to combine comfort, functionality, and spectacular Mediterranean views, this project is ideal for those seeking a home on the Costa de Almería with style and convenience. Modern Homes with Sea Views Each apartment has been thoughtfully designed to maximize natural light and outdoor living. Options include 1, 2, and 3-bedroom layouts, with ground floors featuring private gardens, middle floors with spacious terraces, and penthouses with private solariums. Thanks to the terraced design, all homes enjoy uncovered terraces with stunning views of the sea. Quality Finishes and Fully Equipped Homes Every property comes fully furnished and equipped, ready to move in. Features include: Furnished kitchen with appliances included Complete bathrooms with modern fittings Ducted air conditioning system Private parking space and storage room Exclusive Community Facilities The highlight of this residential complex is its communal swimming pool, surrounded by landscaped gardens, creating the perfect space to relax, sunbathe, and enjoy family time. Prime Location in Vera Playa Vera Playa is renowned for its long sandy beaches, relaxed lifestyle, and excellent amenities. The development is set in a quiet yet well-connected area with easy access to services and transport links. Key distances include: Beach: 700 m Desert Springs Golf Resort: 8 km Vera town centre: 5 km Garrucha marina and restaurants: 6 km Mojácar Commercial Park: 10 km Almería Airport: 85 km (approx. 1 hour) High-speed AVE train station (under construction): 3 km An Ideal Home or Investment Opportunity Whether you are looking for a permanent residence, a holiday retreat, or a secure investment, these new build apartments in Vera Playa offer excellent value in one of Almería’s most desirable coastal destinations. Make Vera Playa your new home and experience the perfect combination of modern living, sea views, and Mediterranean lifestyle. Contact us today to schedule a visit and secure your dream property on the Costa de Almería. 642
Or contact us by whatsapp