660.000€
Surface
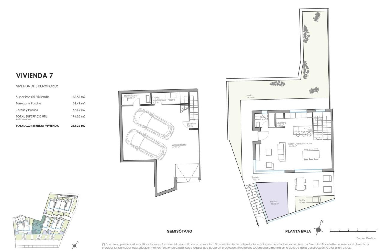
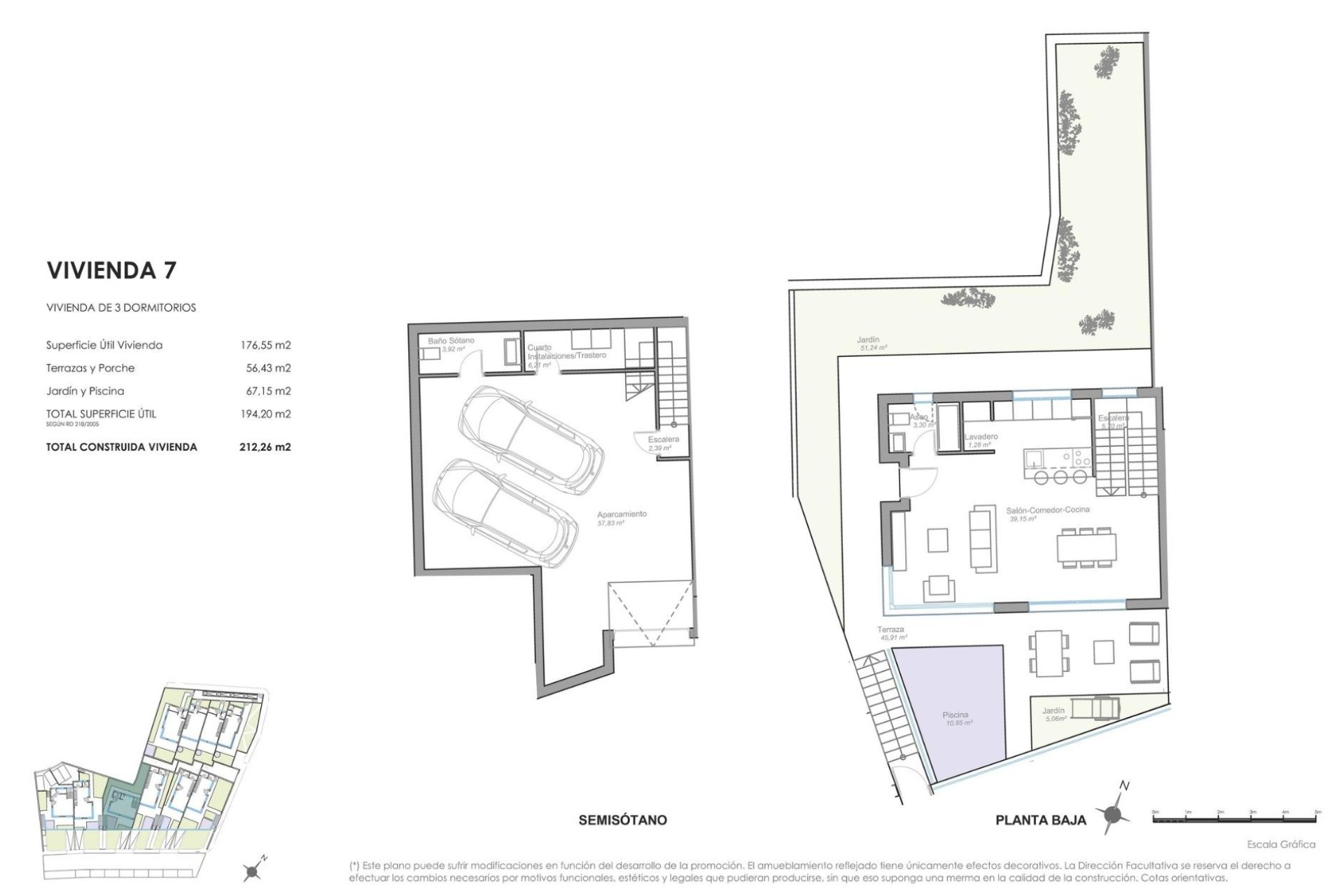
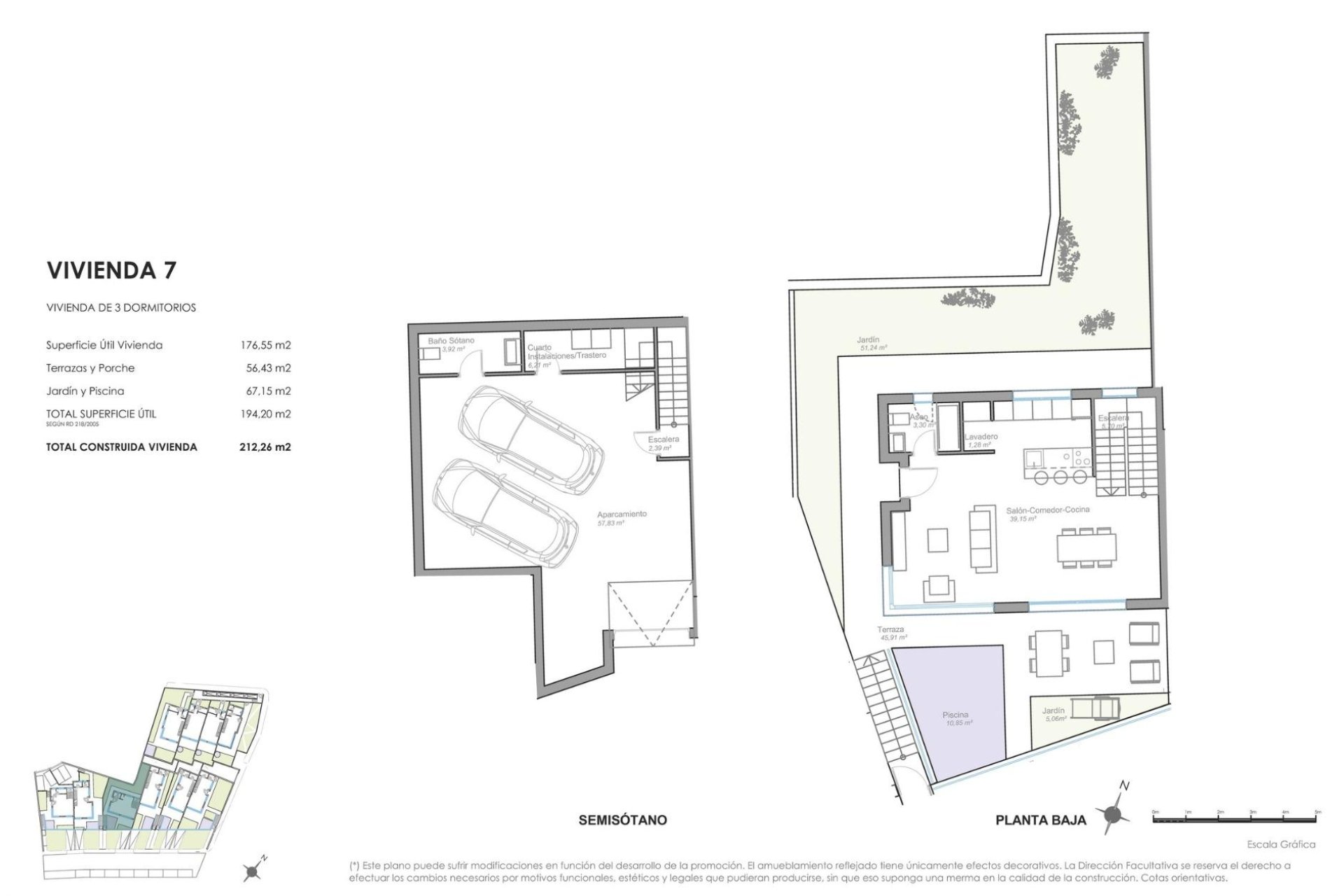
176m2Plot
56m2Beds.
3Baths
3Pool
Yes3
3
176m2
163m2
56m2
Yes
100 Mts.
Views: Sea
Near Schools
Near Commercial Center
Gated
Location: Coastal, Urbanisation
Number of Parking Spaces: 2
Double Bedrooms: 3
Garden
First Line to the Sea
Private Pool
Parking - Space
Terrace: 55 Msq.
Beach: 30 Meters
Useable Build Space: 163 Msq.
Storage / Trastero
Toilet: 1
Exclusive New Build Beachfront Homes for Sale in Mojácar, Costa de Almería Boutique Seafront Living in One of Mojácar’s Most Desirable Areas Discover an exceptional residential boutique composed of only 10 exclusive homes located on the beachfront of the La Mena area in Mojácar. This privileged setting offers direct access across the Paseo del Mediterraneo to the golden sands and crystal clear waters of the Mediterranean Sea. Surrounded by beach clubs, restaurants and a peaceful coastal atmosphere, this area is ideal for those seeking a refined seaside lifestyle. Mojácar Playa and the Parador de Mojácar are just 3 km away, providing a wide range of services, entertainment and natural beauty. Elegant Homes Designed for Comfort and Sea Views This unique development offers three bedroom and three bathroom properties available in two configurations. Buyers can choose between four townhouses with private solarium and optional jacuzzi, or six semi detached villas each with their own private swimming pool. All homes include a large basement garage for two cars and a toilet, spacious terraces and generous garden areas that maximize outdoor enjoyment and sea views. High Quality Specifications and Customization Options Each property is equipped with a fully installed aerothermal air conditioning system, ensuring maximum energy efficiency and comfort throughout the year. The kitchens come unfurnished, allowing owners to personalize their design, with a complete decoration project included. Additional features include preinstallation for smart home technology, reinforced entrance door and high quality construction materials that enhance safety, design and durability. Prime Location with Excellent Connectivity Situated in a serene beachfront setting, the development enjoys convenient access to key destinations along the Costa de Almería. Mojácar Pueblo, with its picturesque whitewashed streets, is only a short drive away. Popular points of interest include: Mojácar Playa 3 km Parador de Mojácar 3 km Marina de Garrucha 12 km Campo de golf Marina Golf 6 km Aeropuerto de Almería 80 km Aeropuerto de Murcia Corvera 150 km Secure Your Frontline Beach Home in Mojácar Experience a lifestyle where the sea becomes part of your everyday routine and luxury blends with coastal serenity. Whether you are looking for a holiday retreat, a permanent residence or an exclusive investment, this boutique beachfront development offers unmatched value. Contact us today to receive additional information or arrange a viewing. 642
Or contact us by whatsapp