378.000€
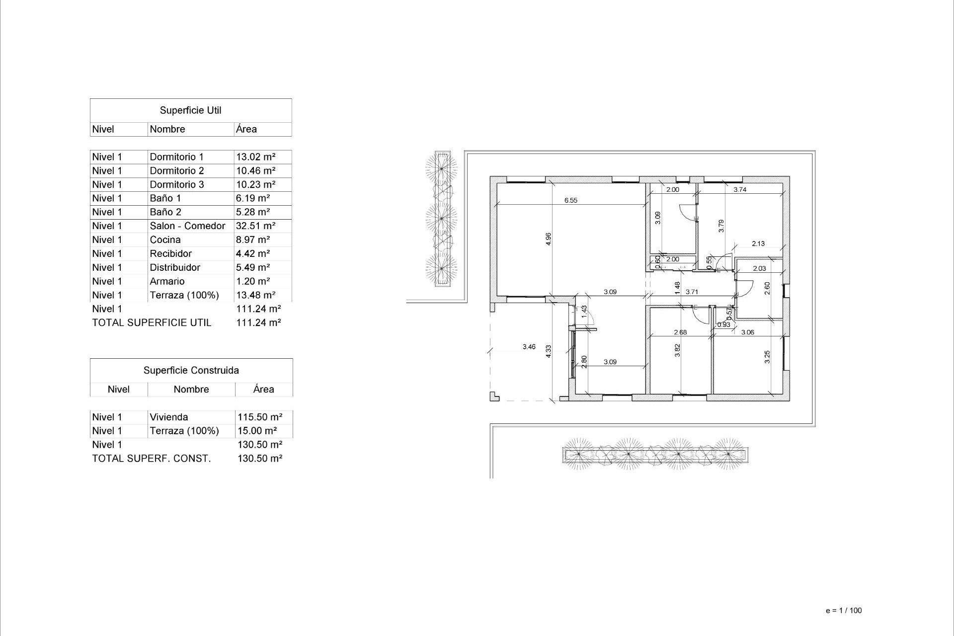
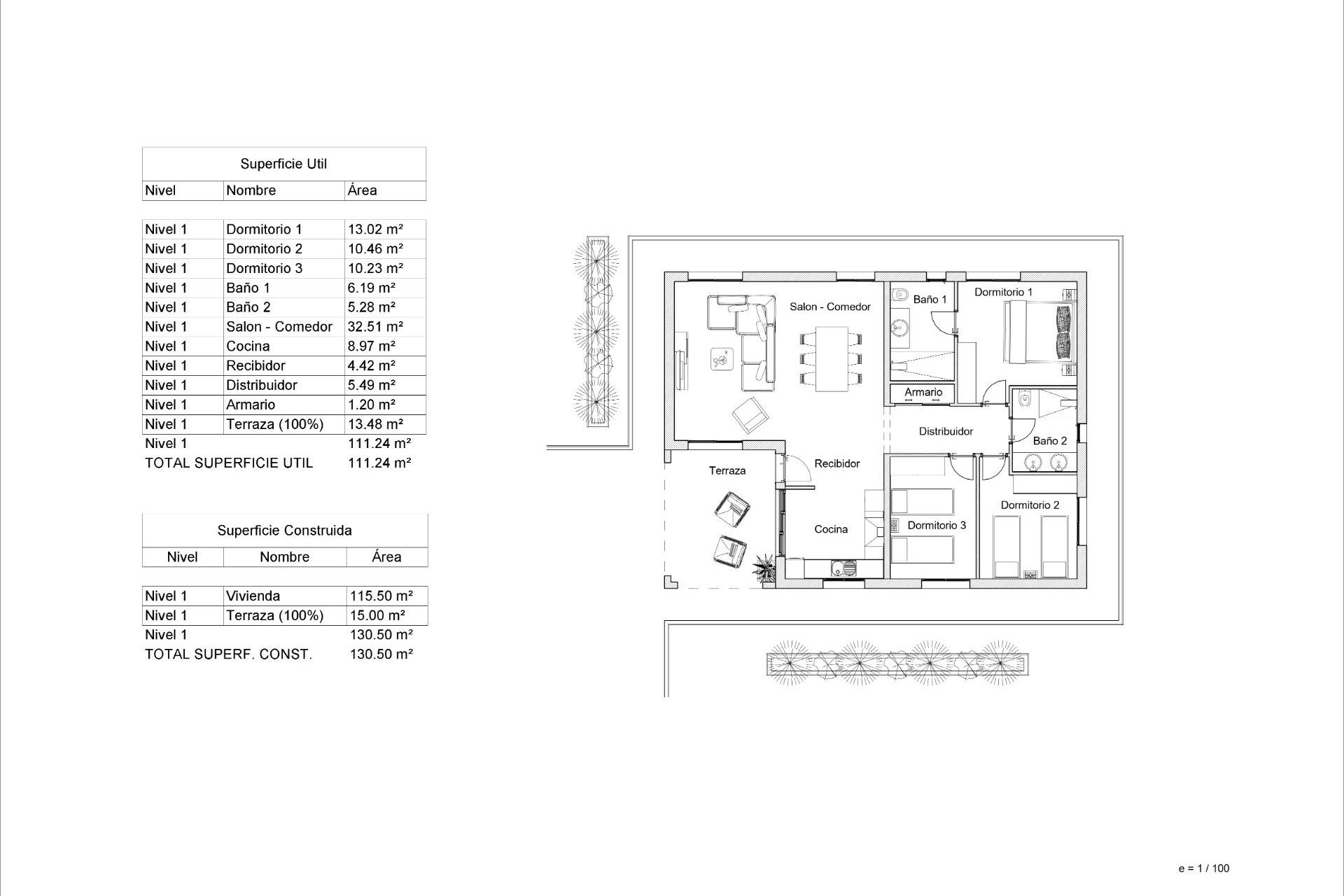
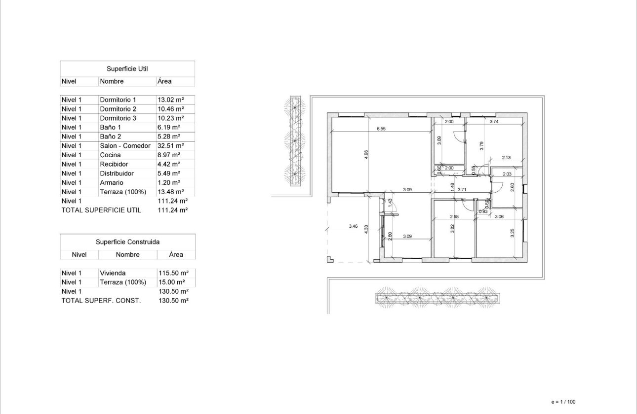
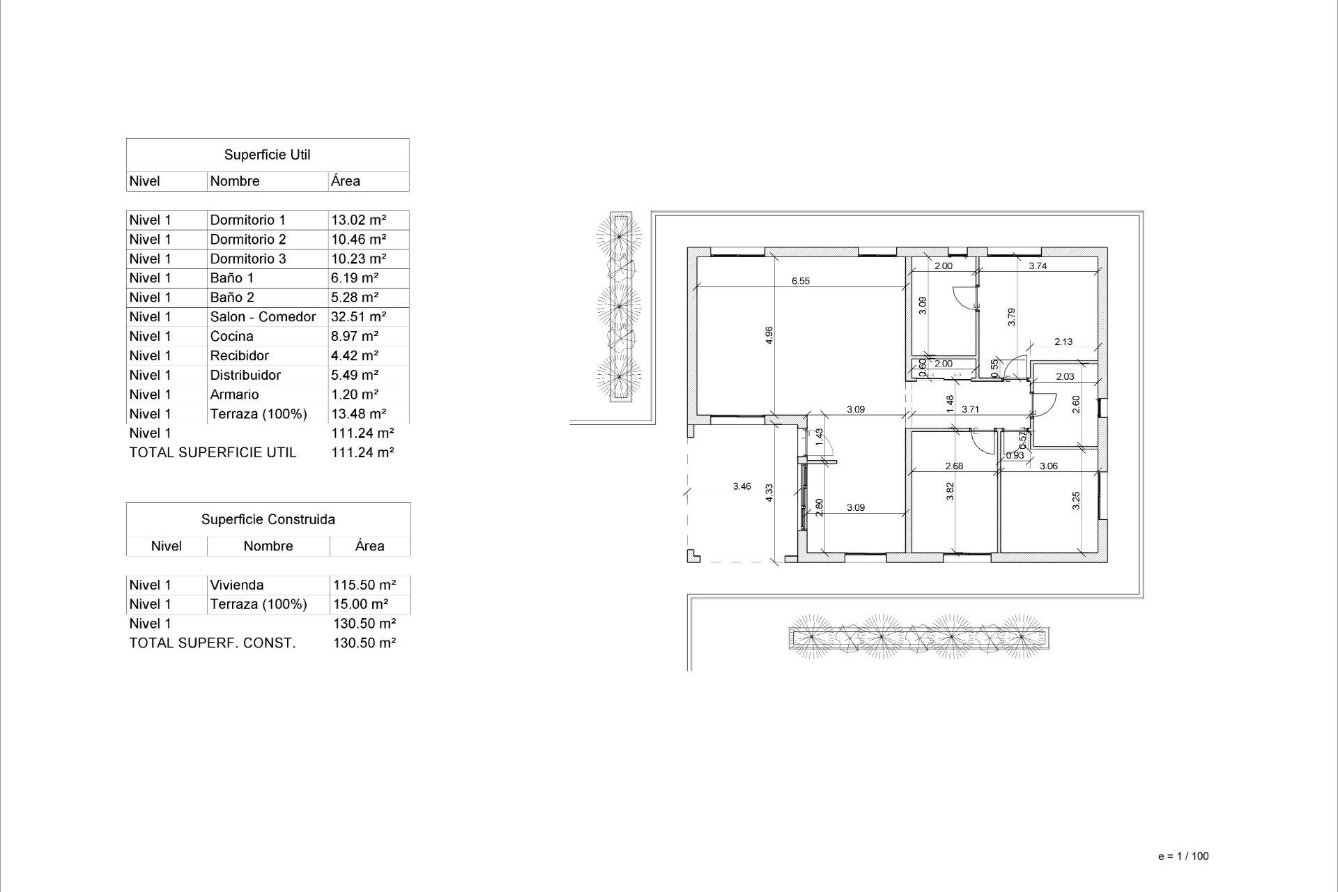
Surface
130m2Parcelle
10.227m2Chambres.
3Salles de bain
2Piscine
Oui3
2
130m2
110m2
10.227m2
Oui
40000 Mts.
Terrace: 15 Msq.
Useable Build Space: 110 Msq.
Parking - Space
Beach: 40000 Meters
Location: Mountain
Number of Parking Spaces: 1
Near Schools
Air Conditioning: Pre-Installed
Gated
Double Bedrooms: 3
Garden
Private Pool
Villas neuves situées à La Romana. Villas neuves avec plusieurs modèles au choix, comprenant 2 ou 3 chambres, sur un ou deux étages et construites avec dalle ou structure : le prix exact sera calculé en fonction du modèle et du terrain choisi. Toutes les villas sont construites sur des terrains rustiques de plus de 10 000 m², dont 2 500 m² seront clôturés. Les villas disposent d'une cuisine américaine avec salon, placards intégrés, piscine privée, porche et place de parking extérieure. Plusieurs terrains sont disponibles, le prix a été calculé sur la base d'un terrain de 73 000 euros (si vous choisissez un autre terrain, la différence sera payée ou remboursée en fonction du prix de celui-ci). Réalisé en autopromotion, livraison dans un délai de 12 mois à compter de l'octroi du permis. Si vous recherchez un environnement calme, à proximité de villages espagnols typiques, loin du tourisme de masse, entouré de montagnes, avec un très grand terrain et à environ 30 minutes de la mer, cette maison est faite pour vous. La Romana est un village espagnol typique avec tous les services nécessaires à la vie quotidienne, entouré de montagnes et de plusieurs sites naturels à proximité où vous pourrez faire des randonnées ou du VTT. Situé à 30 minutes de l'aéroport d'Alicante. 642
Ou contactez-nous par WhatsApp