378.000€
Meters
130m2Perceel
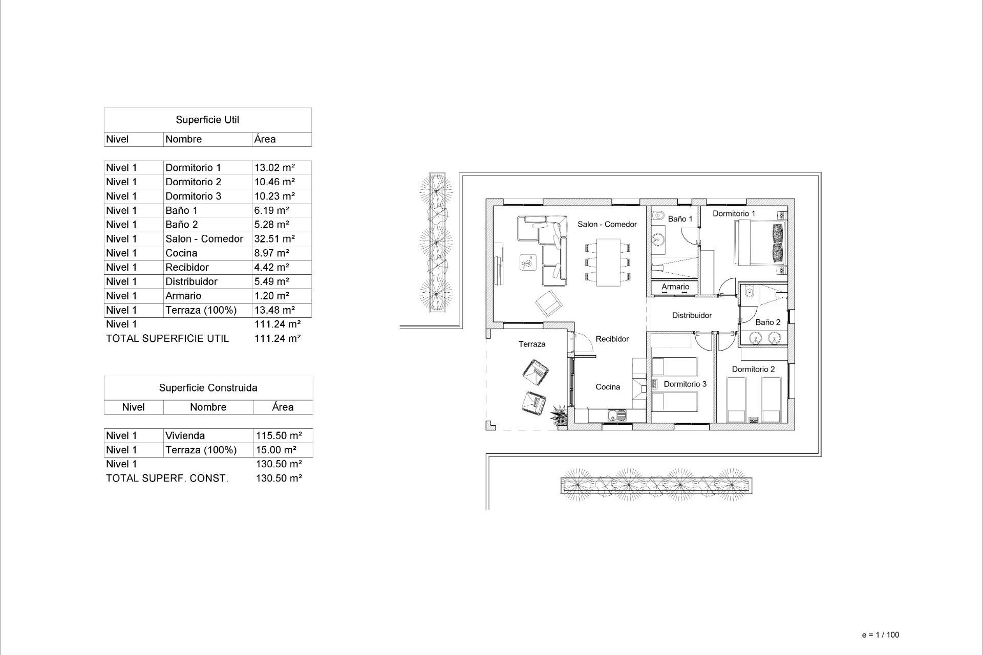
10.227m2Slaapkamers.
3Badkamers
2Zwembad
Ja3
2
130m2
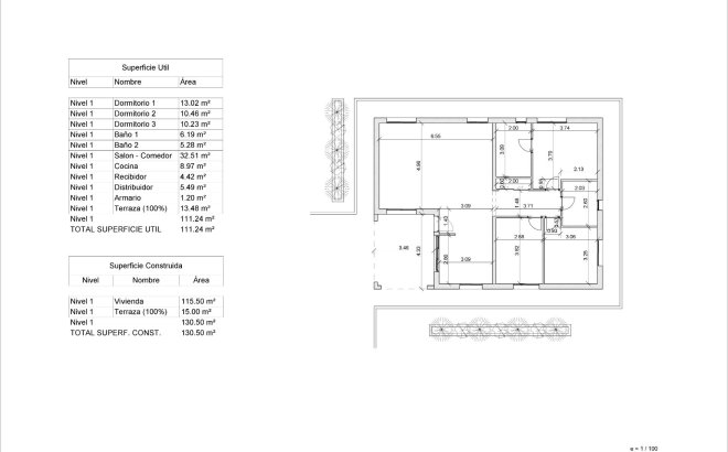
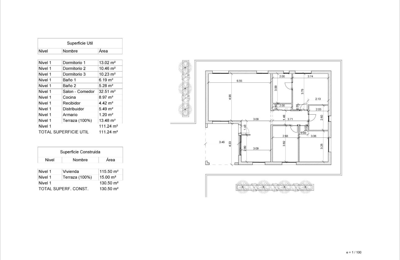
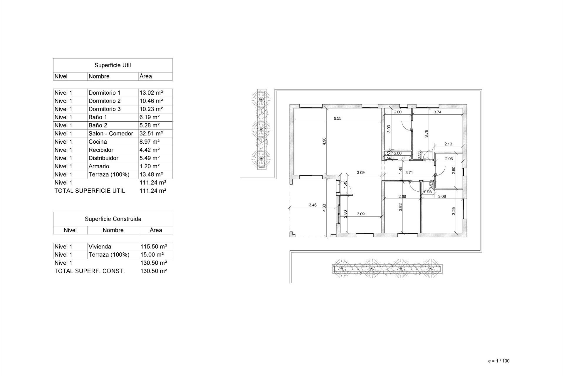
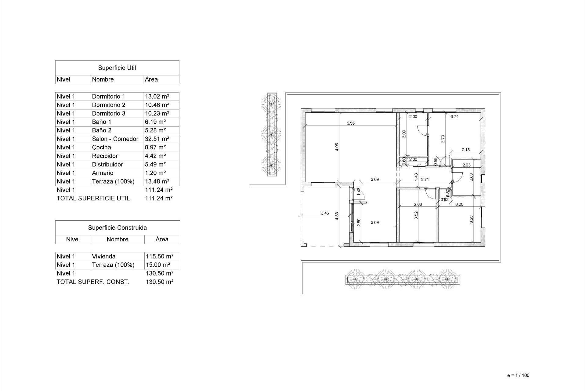
110m2
10.227m2
Ja
40000 Mts.
Number of Parking Spaces: 1
Near Schools
Air Conditioning: Pre-Installed
Gated
Double Bedrooms: 3
Garden
Private Pool
Terrace: 15 Msq.
Useable Build Space: 110 Msq.
Parking - Space
Beach: 40000 Meters
Location: Mountain
Nieuwbouwwoningen in La Romana. Nieuwbouwwoningen met verschillende modellen naar keuze met 2 of 3 slaapkamers, met 1 of 2 verdiepingen en gebouwd met vloerplaten of met een structuur: afhankelijk van het model en het gekozen perceel wordt de exacte prijs berekend. Alle villa's worden gebouwd op rustieke percelen van meer dan 10.000 m2, waarvan 2.500 m2 omheind zal worden. De villa's beschikken over een open keuken met woonkamer, inbouwkasten, privézwembad, veranda en buitenparkeerplaats. Er zijn verschillende percelen beschikbaar. Voor de prijsberekening is uitgegaan van een perceel met een prijs van 73.000 euro (als u een ander perceel kiest, betaalt u het verschil op basis van de prijs van het perceel). Het project wordt in eigen beheer uitgevoerd en wordt binnen ongeveer 12 maanden na verlening van de vergunning opgeleverd. Als u op zoek bent naar een rustige omgeving, dicht bij typisch Spaanse dorpjes, ver weg van het massatoerisme, omgeven door bergen, met een zeer groot perceel en op ongeveer 30 minuten van de zee, dan is dit uw huis. La Romana is een typisch Spaans dorpje met alle voorzieningen voor het dagelijks leven, omgeven door bergen en met verschillende natuurgebieden in de buurt waar u kunt wandelen of mountainbiken. Gelegen op 30 minuten van de luchthaven van Alicante. 642
Contact via WhatsApp